SAFE BOX CENTRS
SAFE BOX mantu glabātavas Rīgā, Kr.Barona ielā 130/K9 darbojas kopš 2023. gada 11. decembra un piedāvā mūsdienīgu, drošu un ērtu risinājumu mantu uzglabāšanai gan privātpersonām, gan uzņēmumiem.
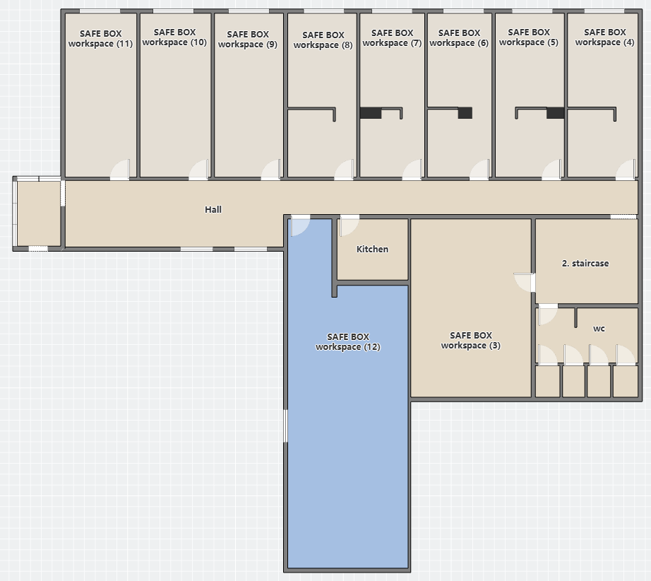
Pilnībā renovētajā ēkā ir izveidotas 185 modernas iekštelpu mantu glabātuves, kas ir drošas, apsildāmas un tīras nodrošinot piemērotus apstākļus dažādu mantu uzglabāšanai visa gada garumā. Īpaša ērtība klientiem ir tā, ka 95% no visām SAFE BOX glabātuvēm atrodas ēkas 1. stāvā , kas ļauj ērti un ātri piekļūt savām mantām bez papildu pārvietošanās pa stāviem.
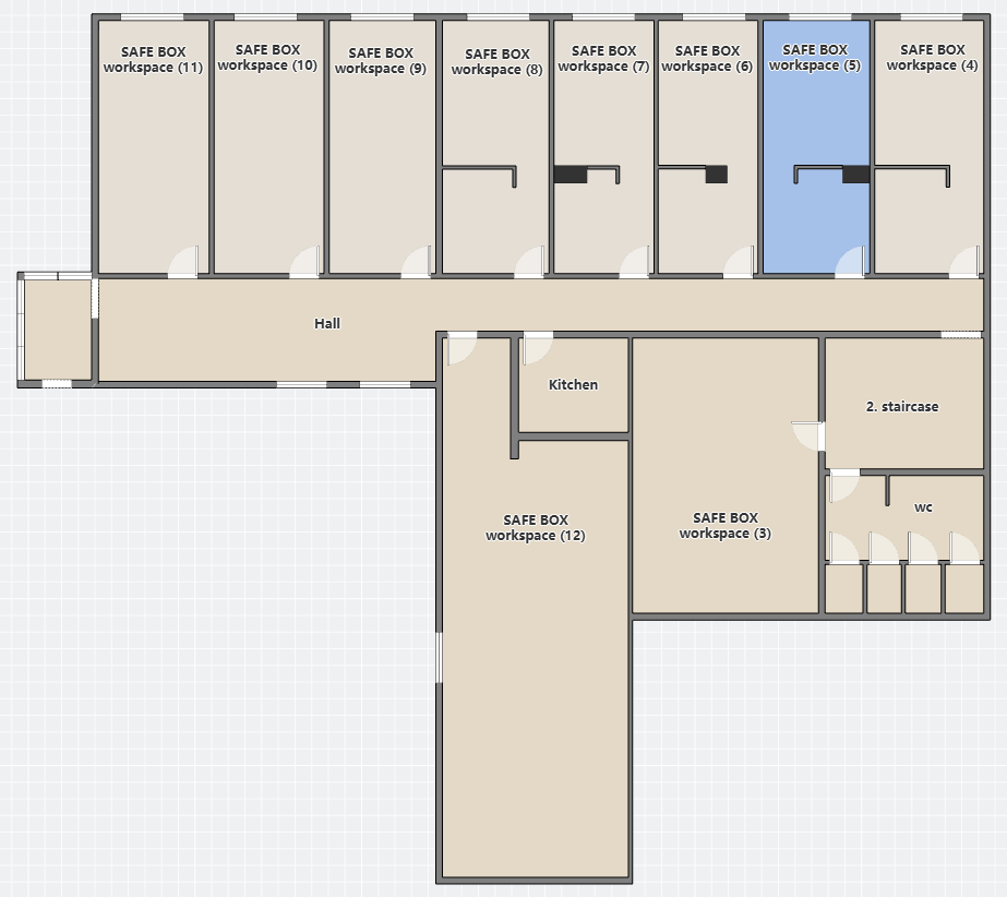
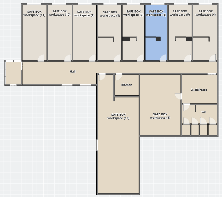
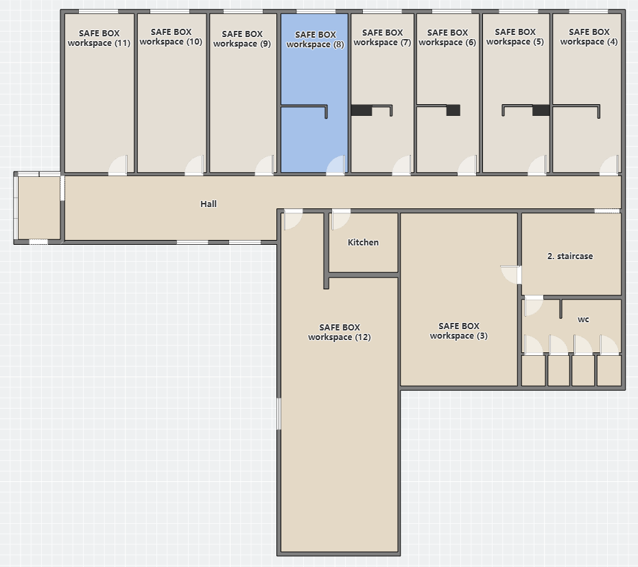
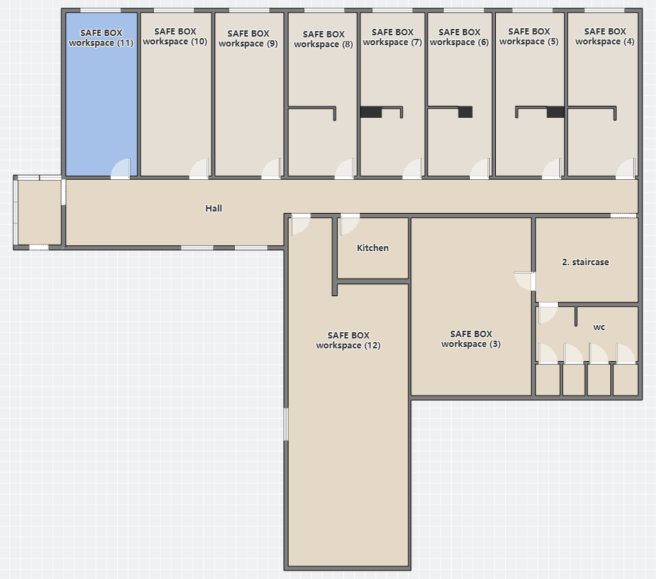
Ēkas 2. stāvā ir izveidots mūsdienīgs biroju komplekss SAFE BOX workspace ar 13 pilnībā renovētiem birojiem. To interjera veidošanā izmantoti vairāk nekā 4000 gadu seni un visā pasaulē atzīti fen šui pamatprincipi, kas palīdz radīt harmonisku un pozitīvu darba vidi, veicinot labu enerģijas plūsmu un produktīvu atmosfēru telpās.
Papildu telpu nomai SAFE BOX projektā Rīgā, Kr. Barona ielā 130/K tiek piedāvāti arī papildu pakalpojumi:
- uzņēmumiem/biedrībām – juridiskās adreses noma;
- privātpersonām – pasta adreses noma, drošai korespondences saņemšanai;
- iekšpagalma autostāvvietas noma
Spied ŠEIT, izvēlies sev vispiemērotāko mantu glabātuves izmēru, noslēdz līgumu mājaslapā un ievieto savas mantas SAFE BOX mantu glabātuvē jau šodien!
Top priekšrocības izvēloties SAFE BOX CENTRS
Izcila lokācija
Mantu glabātuve blakus Tavām mājām/ofisam, starp GRĪZIŅKALNU un CENTRU
Ātri & Ērti
Paraksti līgumu mājaslapā pāris minūšu laikā un ievieto mantas glabātuvē jau ŠODIEN
Piekļuve 24/7
Piekļūsti savām mantām KATRU DIENU, arī brīvdienās un svētku dienās
Ikvienai situācijai
IEKŠTELPU mantu glabātuves dažādos izmēros no 1m3 - 50m2
Droši & patīkami
Mantu glabātuves ar KLIMATA KONTROLI, apsardzes un ugunsdrošības signalizāciju, videonovērošanu
Ievieto savas mantas noliktavā jau šodien
Top ofisu/salonu priekšrocības SAFE BOX workspace CENTRS
Izcila lokācija
Ofiss/salons blakus Tavām mājām, starp GRĪZIŅKALNU un CENTRU
Ātri & Ērti
Paraksti līgumu un sāc darboties savā jaunajā birojā/ofisā jau ŠODIEN
Piekļuve 24/7
Piekļūsti savam ofisam/salonam KATRU DIENU, arī brīvdienās un svētku dienās
Ikvienai situācijai
Izvēlies savu jauno ofisa/salona telpu izmēros no 13m2 - 73m2
Droši & patīkami
KLIMATA KONTROLE, apsardzes un ugunsdrošības signalizācija, videonovērošana un privāts domofons
Autostāvvieta
Privātas, labiekārtotas autostāvvietas noma pie ēkas
Patīkama vide
Telpu iekārtojums veidots balstoties uz vairāk kā 4000 seniem un visā pasaulē atzītiem fen šui principiem
Mantu glabātuves
IEKŠTELPU mantu glabātuves izmēros no 1m3 - 50m2 ēkas 1. stāvā
Optiskais internets
Lieljaudas optiskais internets veiksmīgai darba ikdienai
Viss iekļauts
KOMUNĀLIE PAKALPOJUMI ir iekļauti nomas maksā

- 13 m2 ATDALĪTA TELPA AR ARKAS DIZAINA LOGU
- KOMUNĀLIE PAKALPOJUMI IEKĻAUTI NOMAS MAKSĀ
- 2 VEIDU LED APGAISMOJUMS KATRĀ TELPĀ
- INDIVIDUĀLA APSARDZES SIGNALIZĀCIJA
- UGUNSDROŠĪBAS DŪMU DETEKTORS
- INTERFACE PAKLĀJA SEGUMS
- 24h PIEKĻUVE BIROJAM
- KLIMATA KONTROLE
- VERAMI JUMTA LOGI
- PRIVĀTS DOMOFONS
- 2. STĀVS
NOMAS TARIFS: 699/mēn.
STATUSS: PIEEJAMS

- 12 m2 ATDALĪTA TELPA AR ARKAS DIZAINA LOGU
- KOMUNĀLIE PAKALPOJUMI IEKĻAUTI NOMAS MAKSĀ
- 2 VEIDU LED APGAISMOJUMS KATRĀ TELPĀ
- INDIVIDUĀLA APSARDZES SIGNALIZĀCIJA
- UGUNSDROŠĪBAS DŪMU DETEKTORS
- INTERFACE PAKLĀJA SEGUMS
- 24h PIEKĻUVE BIROJAM
- KLIMATA KONTROLE
- VERAMI JUMTA LOGI
- PRIVĀTS DOMOFONS
- 2. STĀVS
NOMAS TARIFS: 599/mēn.
STATUSS: PIEEJAMS

- 2 VEIDU TELPAS APGAISMOJUMS
- KOMUNĀLIE PAKALPOJUMI IEKĻAUTI NOMAS MAKSĀ
- INDIVIDUĀLA APSARDZES SIGNALIZĀCIJA
- UGUNSDROŠĪBAS DŪMU DETEKTORS
- KLIMATA KONTROLES SISTĒMA
- PORCELĀNA FLĪŽU GRĪDA
- 24h PIEKĻUVE BIROJAM
- VERAMI JUMTA LOGI
- PRIVĀTS DOMOFONS
- 2. STĀVS
NOMAS TARIFS: 499/mēn.
STATUSS: AIZŅEMTS

- 4 VEIDU TELPAS APGAISMOJUMS
- KOMUNĀLIE PAKALPOJUMI IEKĻAUTI NOMAS MAKSĀ
- KLIMATA KONTROLES SISTĒMA
- 24h PIEKĻUVE SAVAM BIROJAM
- 1 DEKORATĪVĀ VĒSTURISKĀ ĶIEĢEĻA SIENA
- TELPAS DALĪJUMS 2 DAĻĀS
- INDIVIDUĀLA APSARDZES SIGNALIZĀCIJA
- UGUNSDROŠĪBAS DŪMU DETEKTORS
- PORCELĀNA FLĪŽU GRĪDA
- PRIVĀTS DOMOFONS
- 2. STĀVS
- IZLIETNE (PĒC NEPIECIEŠAMĪBAS)
NOMAS TARIFS: 399/mēn.
STATUSS: PIEEJAMS

- 4 VEIDU TELPAS APGAISMOJUMS
- KOMUNĀLIE PAKALPOJUMI IEKĻAUTI NOMAS MAKSĀ
- KLIMATA KONTROLES SISTĒMA
- 24h PIEKĻUVE SAVAM BIROJAM
- 1 DEKORATĪVĀ VĒSTURISKĀ ĶIEĢEĻA SIENA
- TELPAS DALĪJUMS 2 DAĻĀS
- INDIVIDUĀLA APSARDZES SIGNALIZĀCIJA
- UGUNSDROŠĪBAS DŪMU DETEKTORS
- PORCELĀNA FLĪŽU GRĪDA
- PRIVĀTS DOMOFONS
- 2. STĀVS
- IZLIETNE (PĒC NEPIECIEŠAMĪBAS)
NOMAS TARIFS: 399/mēn.
STATUSS: PIEEJAMS

- 4 VEIDU TELPAS APGAISMOJUMS
- KOMUNĀLIE PAKALPOJUMI IEKĻAUTI NOMAS MAKSĀ
- KLIMATA KONTROLES SISTĒMA
- 24h PIEKĻUVE SAVAM BIROJAM
- 1 DEKORATĪVĀ VĒSTURISKĀ ĶIEĢEĻA SIENA
- TELPAS DALĪJUMS 2 DAĻĀS
- INDIVIDUĀLA APSARDZES SIGNALIZĀCIJA
- UGUNSDROŠĪBAS DŪMU DETEKTORS
- PORCELĀNA FLĪŽU GRĪDA
- PRIVĀTS DOMOFONS
- 2. STĀVS
- IZLIETNE (PĒC NEPIECIEŠAMĪBAS)
NOMAS TARIFS: 399/mēn.
STATUSS: PIEEJAMS

- 4 VEIDU TELPAS APGAISMOJUMS
- KOMUNĀLIE PAKALPOJUMI IEKĻAUTI NOMAS MAKSĀ
- KLIMATA KONTROLES SISTĒMA
- 24h PIEKĻUVE SAVAM BIROJAM
- 1 DEKORATĪVĀ VĒSTURISKĀ ĶIEĢEĻA SIENA
- TELPAS DALĪJUMS 2 DAĻĀS
- INDIVIDUĀLA APSARDZES SIGNALIZĀCIJA
- UGUNSDROŠĪBAS DŪMU DETEKTORS
- PORCELĀNA FLĪŽU GRĪDA
- PRIVĀTS DOMOFONS
- 2. STĀVS
- IZLIETNE (PĒC NEPIECIEŠAMĪBAS)
NOMAS TARIFS: 399/mēn.
STATUSS: PIEEJAMS

- 4 VEIDU TELPAS APGAISMOJUMS
- KOMUNĀLIE PAKALPOJUMI IEKĻAUTI NOMAS MAKSĀ
- KLIMATA KONTROLES SISTĒMA
- 24h PIEKĻUVE SAVAM BIROJAM
- 1 DEKORATĪVĀ VĒSTURISKĀ ĶIEĢEĻA SIENA
- DIZAINA LUSTRAS & SAMTA AIZKARI
- TELPAS DALĪJUMS 2 DAĻĀS
- INDIVIDUĀLA APSARDZES SIGNALIZĀCIJA
- UGUNSDROŠĪBAS DŪMU DETEKTORS
- PORCELĀNA FLĪŽU GRĪDA
- PRIVĀTS DOMOFONS
- 2. STĀVS
- IZLIETNE AR ATVILKTNI
NOMAS TARIFS: 399/mēn.
STATUSS: PIEEJAMS

- DIVU VEIDU TELPAS APGAISMOJUMS
- KOMUNĀLIE PAKALPOJUMI IEKĻAUTI NOMAS MAKSĀ
- 24h PIEKĻUVE SAVAM BIROJAM
- 1 DEKORATĪVĀ VĒSTURISKĀ ĶIEĢEĻA SIENA
- 2 DEKORATĪVĀS SIENAS ARKAS
- INDIVIDUĀLA APSARDZES SIGNALIZĀCIJA
- UGUNSDROŠĪBAS DŪMU DETEKTORS
- PORCELĀNA FLĪŽU GRĪDA
- PRIVĀTS DOMOFONS
- KLIMATA KONTROLE
- 2. STĀVS
NOMAS TARIFS: 299/mēn.
STATUSS: AIZŅEMTS

- DIVU VEIDU TELPAS LED APGAISMOJUMS
- KOMUNĀLIE PAKALPOJUMI IEKĻAUTI NOMAS MAKSĀ
- 24h PIEKĻUVE SAVAM BIROJAM
- 1 DEKORATĪVĀ VĒSTURISKĀ ĶIEĢEĻA SIENA
- INDIVIDUĀLA APSARDZES SIGNALIZĀCIJA
- UGUNSDROŠĪBAS DŪMU DETEKTORS
- PORCELĀNA FLĪŽU GRĪDA
- PRIVĀTS DOMOFONS
- KLIMATA KONTROLE
- 2. STĀVS
NOMAS TARIFS: 299/mēn.
STATUSS: PIEEJAMS

- 2 VEIDU TELPAS LED APGAISMOJUMS
- KOMUNĀLIE PAKALPOJUMI IEKĻAUTI NOMAS MAKSĀ
- 24h PIEKĻUVE SAVAM BIROJAM
- 1 DEKORATĪVĀ VĒSTURISKĀ ĶIEĢEĻA SIENA
- INDIVIDUĀLA APSARDZES SIGNALIZĀCIJA
- UGUNSDROŠĪBAS DŪMU DETEKTORS
- PORCELĀNA FLĪŽU GRĪDA
- PRIVĀTS DOMOFONS
- KLIMATA KONTROLE
- 2. STĀVS
NOMAS TARIFS: 299/mēn.
STATUSS: PIEEJAMA

- 2 VEIDU LED APGAISMOJUMS
- KOMUNĀLIE PAKALPOJUMI IEKĻAUTI NOMAS MAKSĀ
- INDIVIDUĀLA APSARDZES SIGNALIZĀCIJA
- UGUNSDROŠĪBAS DŪMU DETEKTORS
- PULĒTA BETONA GRĪDA
- 24h PIEKĻUVE BIROJAM
- VERAMI JUMTA LOGI
- PRIVĀTS DOMOFONS
- 2. STĀVS
NOMAS TARIFS: 739/mēn.
STATUSS: PIEEJAMS

- DIVU VEIDU TELPAS LED APGAISMOJUMS
- KLIMATA KONTROLES SISTĒMA
- 24h PIEKĻUVE SAVAM BIROJAM
- 2 DEKORATĪVĀS SIENAS AILES
- TELPAS DALĪJUMS 3 DAĻĀS
- INDIVIDUĀLA APSARDZES SIGNALIZĀCIJA
- UGUNSDROŠĪBAS DŪMU DETEKTORS
- PORCELĀNA FLĪŽU GRĪDA
- PRIVĀTS DOMOFONS
- 2. STĀVS
- IZLIETNE (PĒC NEPIECIEŠAMĪBAS)
NOMAS TARIFS: 499/mēn.
STATUSS: PIEEJAMS
SAFE BOX CENTRS karte
Apskati SAFE BOX workspace iepriekšējo projektu (2021/2022 g.)
Tika izveidoti 8 saulaini un eleganti biroji vēsturiskā 1928.g. ķieģeļu mūra ēkā, Rīgā, Brīvības gatvē 204B. SAFE BOX work space tika izveidoti, lai sniegtu patīkamu, pozitīvu, drošu un produktīvu darba vidi. Pirmajā ēkas stāvā tika nodrošināta pieejamība SAFE BOX mantu glabātuvēm ar plašāko izmēru klāstu Latvijā. SAFE BOX work space klienti varēja ērti uzglabāt savu biznesa produkciju, dokumentu arhīvu kā arī retāk izmantojamās biroja mēbeles un tehnisko aprīkojumu.
Tikai 5min. attālumā no Rīgas centra atradās skaista, patīkama un droša darba vide mūsdienīgajā un inovatīvajā VEF teritorijā klientu darba ikdienai. Priekšrocības ko sniedza attīstītā VEF teritorijas infrastruktūra – kafejnīcas, restorāni, t/c “Elkor Plaza”, t/c “Domina”, LMT ofisa ēka, banku filiāles, apdrošināšanas kompānijas, medicīnas pakalpojumu sniedzēji, Rīgas pilsētas Vidzemes priekšpilsētas tiesas zemesgrāmatu nodaļa, ceļojumu aģentūras, sporta klubi, skaistumkopšanas saloni, servisa centri utt.









































